Architekturvermessung und Geodätische Messung
HOME
Über uns
Leistungen
Referenzen
Preise
Kontakt
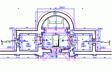
Baupläne von Kapelle - Architekturvermessung
Baupläne - AutoCAD
© AGM-GEO